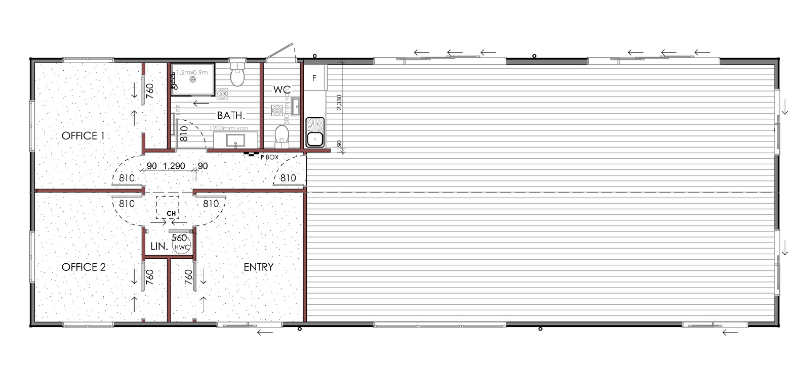
C144 Office & Open Plan Building
This 144m2 office space has a large open area for multiple workspaces.
Build your transportable spacious open-plan office with Transbuild Commercial.
We save you valuable time and money by building your commercial building offsite at our innovative factory and transporting it to you.
Building fit out is completed ready to connect to your onsite services
Cost estimate provided will be for building including:
- CCC for building ex-factory
- Delivery within Auckland Council Region (extra km quoted)
- Standard foundations for the building to NZS 3604 (excludes deck)
We transport buildings throughout all of the North Island and manage your site building consent processing with your local council. Refer to generic specifications and general inclusions.
- Reception Area
- 2 Offices/Meeting Rooms
- Large Open Plan Office Area
- Kitchen
- Full Bathroom
- Additional Separate Toilet





