*deck artists impression only
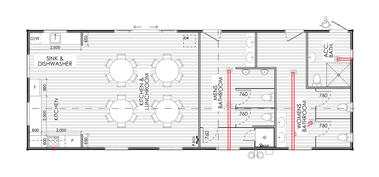
C98 Staff Kitchen Ablutions
Accessibility female and male bathrooms with large open plan staff room and kitchen. Versatile building to complement the main office for staff.
Building fit out is completed ready to connect to your onsite services. Cost estimate provided will be for building including:
- CCC for building ex-factory
- Delivery within Auckland Council Region (extra km quoted)
- Standard foundations for the building to NZS 3604 (excludes deck)
We transport buildings throughout all of the North Island and manage your site building consent processing with your local council. Refer to generic specifications and general inclusions.
- 5 Toilets
- 2 Showers
- 1 Accessibility bathroom
- 2 Urinals
- 5 Wash Basins
- 2 Kitchen Spaces





