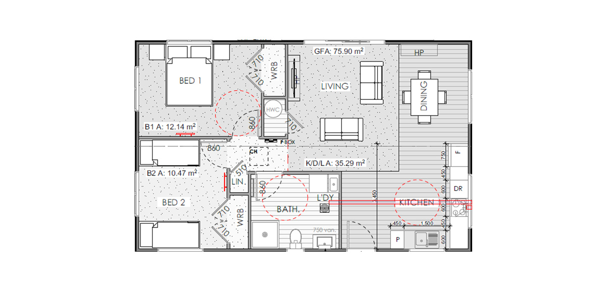
D76-A – 2 Bedroom Home
2
1
11 x 6.9m
75.9sqm
Compact & Efficient Living with Seamless Flow
A cleverly designed two-bedroom transportable home that maximises space and functionality. The open-plan layout integrates kitchen, dining, and living areas, creating a practical, efficient solution for residential property development. With an emphasis on natural light and architectural design this ready-made home solution ensures a cost-effective build with modern appeal.
Roof Profiles Available
This is available with a Gable or Mono pitch roofline.
Mono
A sleek, single-angled roofline for a modern look.
Gable
A classic, symmetrical pitched roof, often likened to a barn style.
- Simple and fast
- 8-10 week build
- Delivered and connected to foundations
- Fixed price
- No hidden costs
- Customised scope





