*deck artists impression only
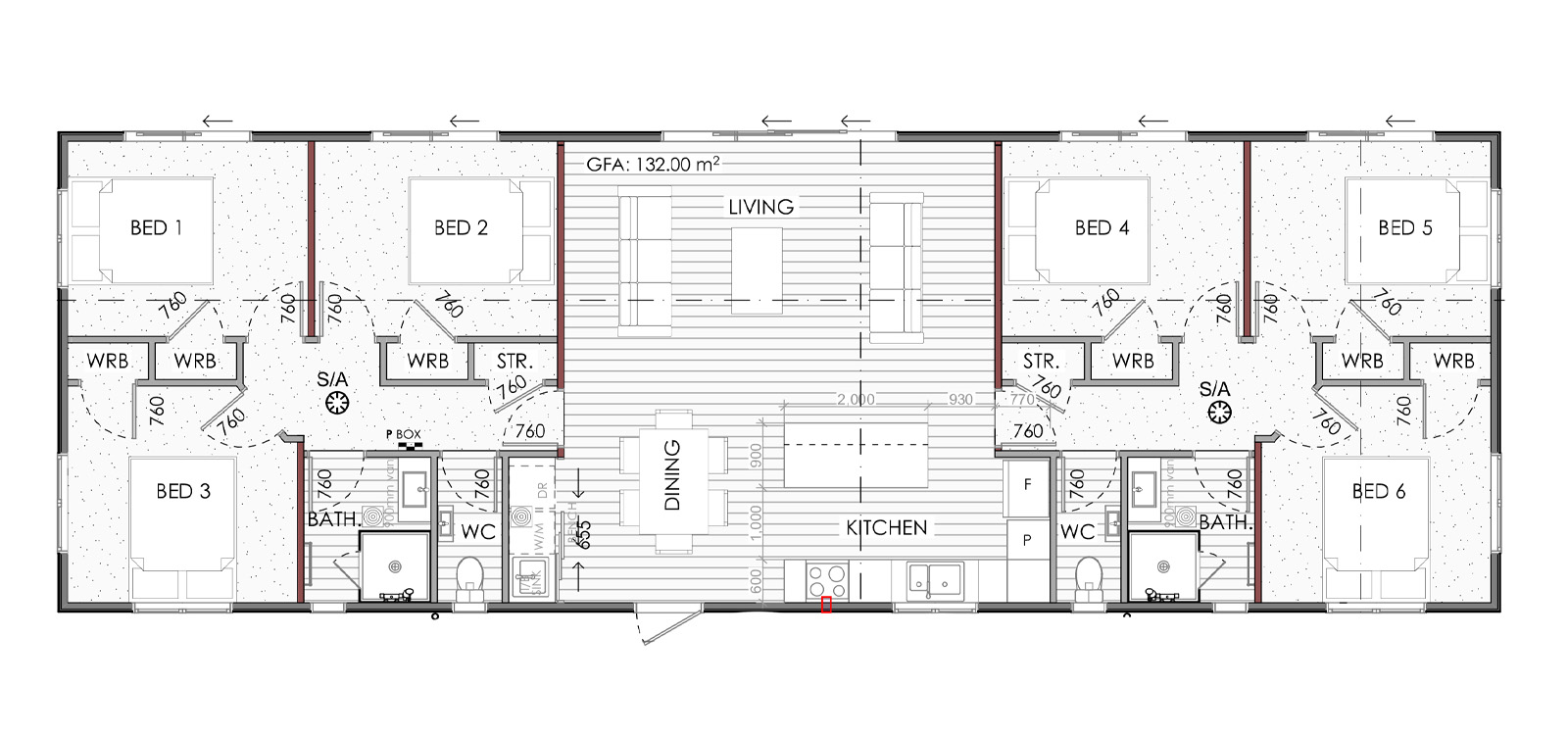
HICKS 6 Bedroom Accommodation
All bedrooms have wardrobes and the living area flows on to a deck. Two generous shared bathrooms and separate toilet. Great option for a multi shared bach, worker or backpack accommodation which ensures comfort and social space for guests.
Building fit out is completed ready to connect to your onsite services. Cost estimate provided will be for building including:
- CCC for building ex-factory
- Delivery within Auckland Council Region (extra km quoted)
- Standard foundations for the building to NZS 3604 (excludes deck)
We transport buildings throughout all of the North Island and manage your site building consent processing with your local council. Refer to generic specifications and general inclusions.
- 6 Bedrooms
- 2 Bathrooms
- 2 Toilets
- Open Plan Living
- Kitchen
- Laundry





