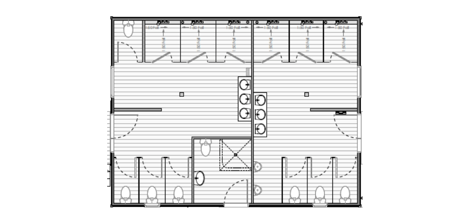
A68 Ablution Block
This fully self-contained ablution block is a smart solution for schools, marae, sports clubs, rural sites, and office facilities needing extra capacity.
Built off-site and delivered ready to connect, this transportable building saves time on setup while ensuring comfort and compliance from day one.
Looking for something tailored? Our prefab designs can be configured to suit your needs.
Building fit out is completed ready to connect to your onsite services. Cost estimate provided will be for building including:
- CCC for building ex-factory
- Delivery within Auckland Council Region (extra km quoted)
- Standard foundations for the building to NZS 3604 (excludes deck)
We transport buildings throughout all of the North Island and manage your site building consent processing with your local council. Refer to generic specifications and general inclusions.
- 8 Toilets
- 2 Urinals
- 1 Accessibility bathroom
- 6 Showers
- 7 Basins





