*deck artists impression only
A70 Ablutions Block
Facilities Tailored to Your Needs
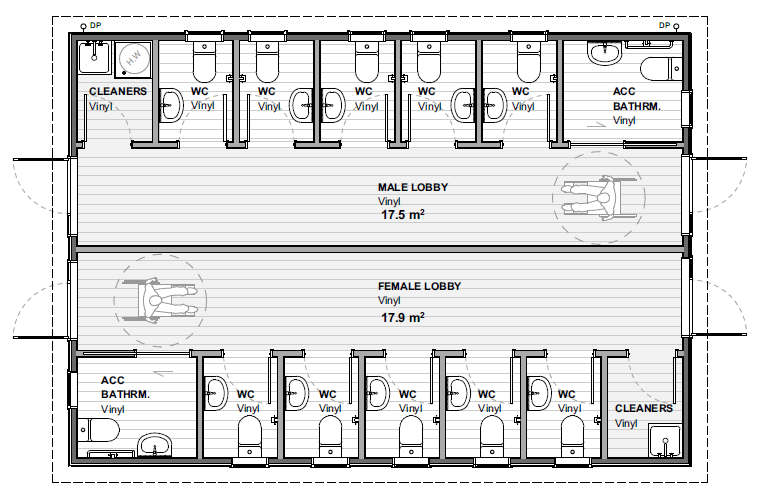
The A70 Ablutions Block provides a dedicated solution for school facilities, with 10 toilets, two accessible bathrooms, and separate male and female lobbies. Designed for convenience and efficiency, it’s a hassle-free addition to any school. Need a solution fast? We’ll deliver in just 8-10 weeks your prefab ablutions block.
Building fit-out is completed and ready for seamless connection to your on-site services, ensuring minimal disruption to your school or educational facility.
The cost estimate includes:
- Code Compliance Certificate (CCC) for the building ex-factory
- Delivery within the Auckland Council Region (additional kilometres quoted separately)
- Standard foundations for the building to NZS 3604 standards (excludes decking)
- We transport prefab classrooms and other buildings throughout the North Island, managing the building consent process with your local council to provide a hassle-free experience. Enquire for information about our generic specifications and general inclusions for further details. On-site services and connection options are available on request
- 10 toilets for high capacity
- Two accessible bathrooms
- Separate male and female lobbies
- Cleaner closets for convenience
- Sustainable, offsite construction
- Fast 8-10 Week Solution





