*deck artists impression only
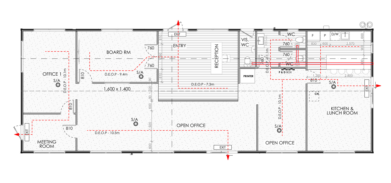
C169 Office/Multi Office Block
The optimal set up for business operations with 3 Open Plan areas for employee work spaces. Plus 2 Board/Meeting Rooms.
Enjoy a large kitchen and lunch room.
2 Staff toilets with a separate visitor’s bathroom.
169m2 of pure business potential.
Building fit out is completed ready to connect to your onsite services.
Cost estimate provided will be for building including:
- CCC for building ex-factory
- Delivery within Auckland Council Region (extra km quoted)
- Standard foundations for the building to NZS 3604 (excludes deck)
We transport buildings throughout all of the North Island and manage your site building consent processing with your local council. Refer to generic specifications and general inclusions.
- 3 Open Plan Office Spaces
- 2 Board/Meeting Rooms
- Central Reception Area
- Large Kitchen and Lunchroom
- 2 Staff Toilets
- Visitor Toilet With Outside Access





