C175 – Operations & Wellness Centre
Transportable Facility Supporting Team Wellbeing
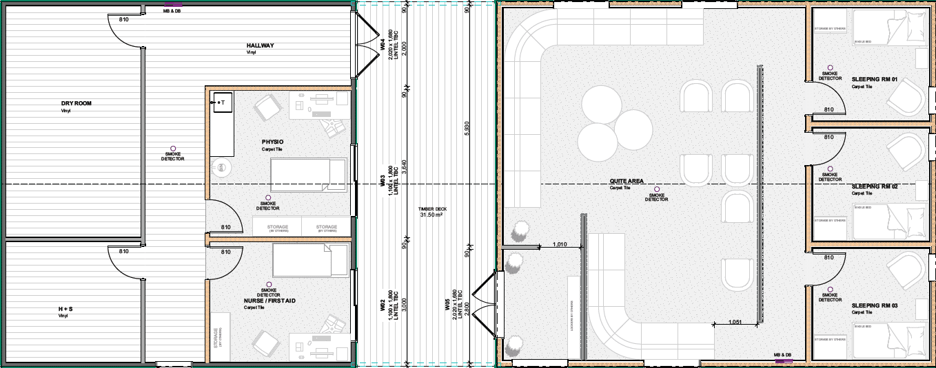
The C175 is a transportable facility designed around a simple idea: creating spaces that support the people doing important work. It offers 175.5 m² of building space, connected by a 31.5 m² central deck. Together, these spaces create a flexible environment where teams can work, rest and reconnect throughout the day.
Inside, the layout includes a range of practical rooms. These include sleeping rooms, a quiet area, physio room, nurse or first aid room and operational support spaces. This arrangement helps organisations support both day-to-day operations and the wellbeing of the people using the space.
At its heart, the design reflects the concept of Hauora. It supports the physical, mental and social wellbeing of teams. The C175 can work as a sports recovery facility, workforce support centre, wellness space or operational hub. It provides an environment where people can reset, recover and continue doing their best work.
Built in Transbuild’s factory and delivered ready for installation, the C175 is designed for efficient delivery. It offers organisations a practical way to establish a people-focused facility quickly.
Building fit out is completed ready to connect to your onsite services
Cost estimate provided will be for building including:
- CCC for building ex-factory
- Delivery within Auckland Council Region (extra km quoted)
- Standard foundations for the building to NZS 3604 (excludes deck)
We transport buildings throughout all of the North Island and manage your site building consent processing with your local council. Refer to generic specifications and general inclusions.
- Two transportable buildings connected by a central deck
- Designed to support team wellbeing and Hauora
- Flexible spaces for operations, wellness or community use
- Built in 8–10 weeks
- Customised to your scope
- Turnkey building solution
- Save time and money with offsite construction





