*Inspirational Photograph, deck not included. Plans can be flipped / mirrored.
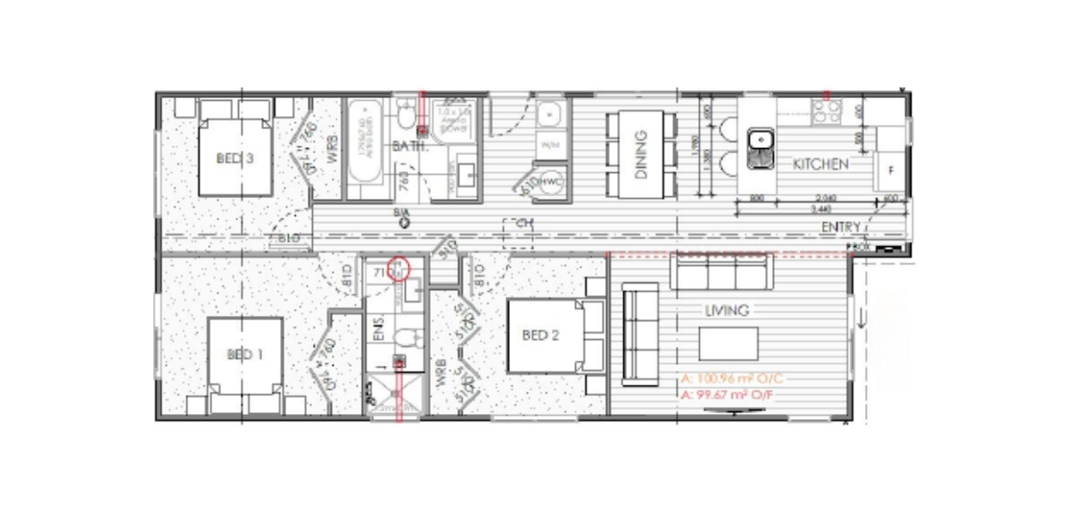
D101 - 3 Bedroom Single Duplex
3
2
15.45 x 6.7m
101sqm
Efficient & Practical Duplex for Developers
Discover our modern duplex, featuring an open-plan ground floor and three bedrooms, including a master suite with ensuite—perfect for high-density property development in New Zealand. Our off-site construction approach reduces build time while maintaining a sleek, contemporary design. This space-efficient floorplan is designed to maximise your land value and investment returns.
Roof Profiles Available
This is available with a Dual Pitch roofline.
Dual Pitch
Two separate gables combining functionality with unique design.
- Simple and fast
- 8-10 week build
- Delivered and connected to foundations
- Fixed price
- No hidden costs
- Customised scope





