Shovel-Ready
Factory consent already issued
Developer Approved
Rangitahi sign-off granted
Consents Ready
Site consent ready to lodge
The Location
The Landing sits on Rangitahi Peninsula, a master-planned community just across the harbour from Raglan township. You’re minutes from Manu Bay’s surf breaks, Ngarunui Beach, and Raglan’s cafés and galleries — with all the calm of peninsula living and all the pull of one of New Zealand’s most loved coastal towns on your doorstep.
5 Katakata Street, Raglan offers a 404m² section in Stage 5 at the Landing – one of the final releases at this sought-after address.
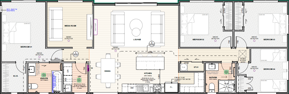
The Home (Burns 133)
Length 20.4m | Width 6.6m | Area 133m² | 4 bed | 2 bath | 2 living
*Floor plan & exterior colours are fixed for this package – Choose your interior fixtures and colours.
A Home to Grow Into, a Community to Belong To
A four-bedroom, two-bathroom home on a 404m² section in Stage 5 of The Landing, Raglan – developer-approved, consent-ready, and priced as a single fixed figure.
The Burns 133 delivers contemporary living with 2.57m ceilings, stacker doors opening to a north-facing timber deck with covered louvre, and a custom kitchen with Fisher & Paykel appliances and separate scullery.
The master suite includes a walk-in wardrobe and ensuite. A dedicated media room adds a genuine second living space.
Southern 41 thermal double-glazed joinery and Pink Batts insulation throughout.
Interior selections – flooring, cabinetry, tapware – are yours to personalise. A landscaping plan has been designed and developer-approved, available to the incoming owner to complete. Keys in approximately three months.
Roof Profile
Mono
What’s Included
A fully considered, fixed-price package:
- 133m² Architectural Burns 133 home
- 404m² section – 5 Katakata St, Raglan
- Developers Approval issued
- Consent-ready documentation
- Foundations, engineering and site works
- Driveway, services connections and drainage
- Decking, paths, and site works per approved plans
- Project management and full delivery coordination
- Registered Master Builder guarantee
A developer-approved landscaping plan is also included – giving a clear vision for planting, fencing and an outdoor louvre system, ready for the new owner to complete.
What’s not Included
To keep pricing clear and fixed, the following are excluded:
- Landscaping and planting
- Fencing and louvre system
- Window furnishings
- Appliances (beyond built-in kitchen suite)
- Deck staining and selected finishing items
Personalise your Interior
You retain control over key finishes through Transbuild’s selection process, including:
- Interior Paint colours
- Kitchen cabinetry finish
- Flooring colours
- Bathroom vanity & tapware finishes
Gallery
*Images include artistic impressions and photographs of similar Transbuild builds. These images are not an accurate representation of layout, final finishes, landscaping, or site conditions. Landscaping is not included in the package price; a developer-approved plan is available to the incoming owner.
Let's Talk
Shamil Gujarati
Sales & Business Development Manager
Ph: 021 449 807
shamil@transbuild.co.nz
Get in touch about 5 Katakata Street, Raglan
Here’s What Our Customers Say
“It definitely feels like our home…
with our own special touches on it. We’ve always wanted a transportable home: it’s so much quicker & more affordable.”
– Zoey & James
“Transbuild fit our parameters nicely which made a big difference…
Convenience was one of the reasons we chose Transbuild. We needed to downsize, and the best way to do it was with a transportable.”
– Judith & Mark
“We’ve always wanted a transportable home…
It was quicker, more affordable, and perfectly suited our needs.”
– Russell & Jean







