From $327,000 incl. GST (home only)
3
2
120sqm
18.1m x 6.6m
A Home That Belongs on Your Land
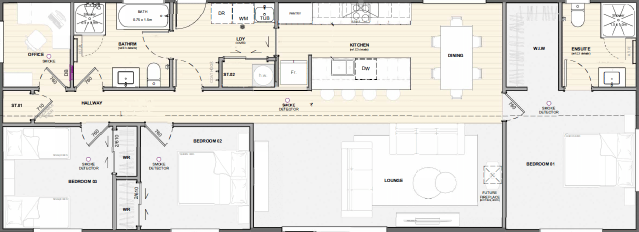
This architecturally designed 120m² transportable home has been purpose-built for rural living, with a layout that supports the realities of working life on the land while maintaining comfort where it matters.
A dedicated office sits off the hallway, finished with hard-wearing flooring to handle the working day without impacting the rest of the home. Adjacent is a lockable storage cupboard, providing secure space for essential items. The nearby laundry connects directly outside and has been designed as a practical transition zone, with a tub, coat storage, and easy access through to the bathroom and kitchen – allowing wet gear, boots, and the day’s work to be managed without moving through the main living areas.
At the centre, the open-plan kitchen, dining, and lounge create a comfortable, connected living space. Elevated ceilings enhance the sense of space, with provision for a future fireplace adding warmth over time. The master retreat is positioned at one end of the home, complete with its own ensuite and walk-in wardrobe. At the opposite end, two additional bedrooms include full wardrobes and sit alongside a family bathroom.
Roof Profiles Available
The McKenzie is available with a Gable pitch roofline.
Gable
Send me more information and pricing for the McKenzie 120
Includes a delivered and installed price estimate based on your location.
Roofline Profiles
Gable
Here’s What Our Customers Say
“It definitely feels like our home…
with our own special touches on it. We’ve always wanted a transportable home: it’s so much quicker & more affordable.”
– Zoey & James
“Transbuild fit our parameters nicely which made a big difference…
Convenience was one of the reasons we chose Transbuild. We needed to downsize, and the best way to do it was with a transportable.”
– Judith & Mark
“We’ve always wanted a transportable home…
It was quicker, more affordable, and perfectly suited our needs.”
– Russell & Jean