S150 Sports Changing Room Facility

Commercial  |  19.45 x 7.7m

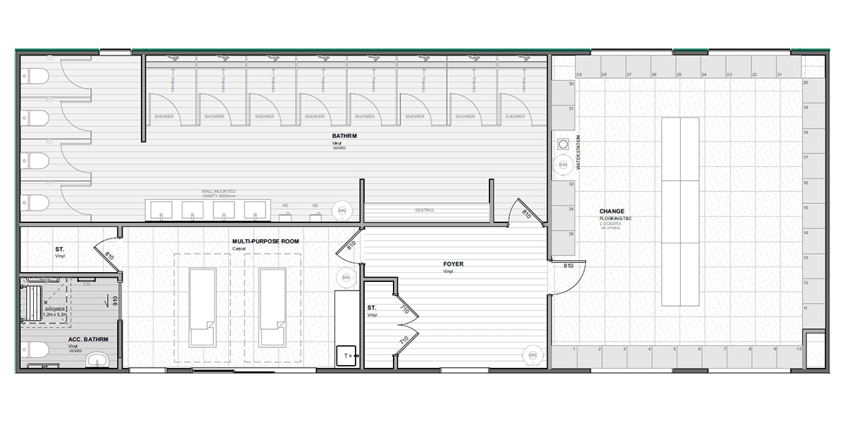
The S150 Sports Changing Room Facility is a robust prefabricated building designed for clubs, schools, and community organisations needing reliable amenities. At 150m², this transportable facility combines spacious team changing rooms with high-quality ablutions, creating a complete solution for sports grounds and community spaces.

The large changing room features lockers, a water station, and a central seating area, providing a practical hub for teams to prepare and regroup. Modern ablutions include eight showers, four vanities, and four toilets, with hand dryers for convenience. An accessible bathroom with shower ensures inclusivity for all players and visitors.

Practical extras such as a foyer with storage, a multipurpose room with bench and sink, and a storage cupboard make this facility efficient and easy to manage. Built offsite and installed efficiently, the S150 Changing Room and Ablutions Facility is an ideal solution for sporting fields, schools, and community venues across the North Island.

*Image for inspiration only. 

Size 150sqm

  • 150m² prefabricated changing room and ablutions facility
  • Large team changing room with lockers, seating, and water station
  • Eight showers, four vanities, and four toilets with hand dryers
  • Accessible bathroom with shower for inclusive design
  • Multipurpose room with bench and sink plus additional storage
  • Delivered offsite, transportable, and ready for fast installation

Building fit out is completed ready to connect to your onsite services.

Cost estimate provided will be for building including:

  • CCC for building ex-factory
  • Delivery within Auckland Council Region (extra km quoted)
  • Standard foundations for the building to NZS 3604 (excludes deck)

We transport buildings throughout all of the North Island and manage your site building consent processing with your local council. Refer to generic specifications and general inclusions.

Download Brochure

Contact us for your specific requirements and our team will send a quote

Floorplan