
Building fit out is completed ready to connect to your onsite services.
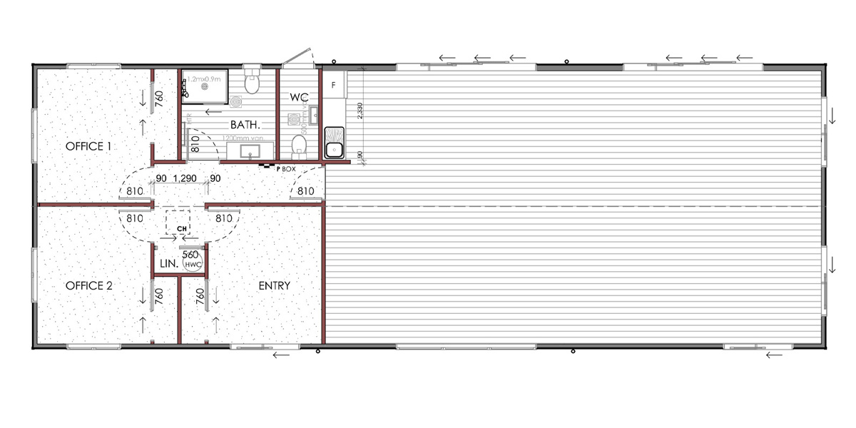
Size 144sqm
- Reception Area
- 2 Offices/Meeting Rooms
- Large Open Plan Office Area
- Kitchen
- Full Bathroom
- Separate Toilet With Outside Access
Cost estimate provided will be for building including:
- CCC for building ex-factory
- Delivery within Auckland Council Region (extra km quoted)
- Standard foundations for the building to NZS 3604 (excludes deck)
We transport buildings throughout all of the North Island and manage your site building consent processing with your local council. Refer to generic specifications and general inclusions.