*project example – deck not included

C147-1 Office Building

Commercial  |  20 x 7m

This fully self-contained transportable office is a professional, purpose-built space designed to support busy teams and growing businesses.

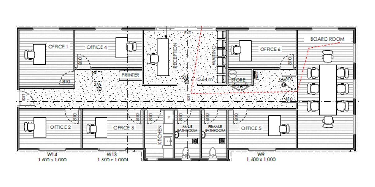
With a welcoming reception area, six private offices, a spacious boardroom, and shared amenities, this layout offers everything your team needs to collaborate and thrive.

A central hallway allows for convenient access to each room, with space allocated for IT and printing equipment.

Male and female toilets, plus a compact kitchen for coffee and meals, ensure comfort and functionality throughout the day.

Built off-site as a prefab solution, this high-quality transportable building is delivered ready to connect, helping you save valuable time and money.

Need something adjusted? We offer a customised scope to suit your operational needs.

Building fit out is completed ready to connect to your onsite services.

Size  147sqm

  • 6 Private offices
  • Central reception area
  • Large boardroom
  • Male & Female toilet facilities
  • Compact Kitchen
  • Delivered ready to connect
  • Save valuable time and money
  • 10-week build time
  • Customised scope available

Cost estimate provided will be for building including:

  • CCC for building ex-factory
  • Delivery within Auckland Council Region (extra km quoted)
  • Standard foundations for the building to NZS 3604 (excludes deck)

We transport buildings throughout all of the North Island and manage your site building consent processing with your local council. Refer to generic specifications and general inclusions.

Download Brochure

Contact us for your specific requirements and our team will send a quote

Floorplan

Gallery